Business up front, domestic quarters in the back. Yuko Kim Safu, a floral designer and café owner in Yokohama City, Japan, wanted to transform her “Western-style” wooden house into a small café with living space and a commercial kitchen included.
She and her husband, Chris, an American businessman, had built their place 28 years ago and were ready to give it a new guise. They hired No. 555 Architectural Design Office to sweep in and do a quick and economical fix.
The Tokyo firm is a longstanding Remodelista favorite for its inventive use of humble building materials and its embrace of low-key living: see, for instance, The Nonchalant Family Home and A Wabi-Sabi Surf Shack.
Join us for a tour:
Photography by Shunichi Koyama, courtesy of No. 555.

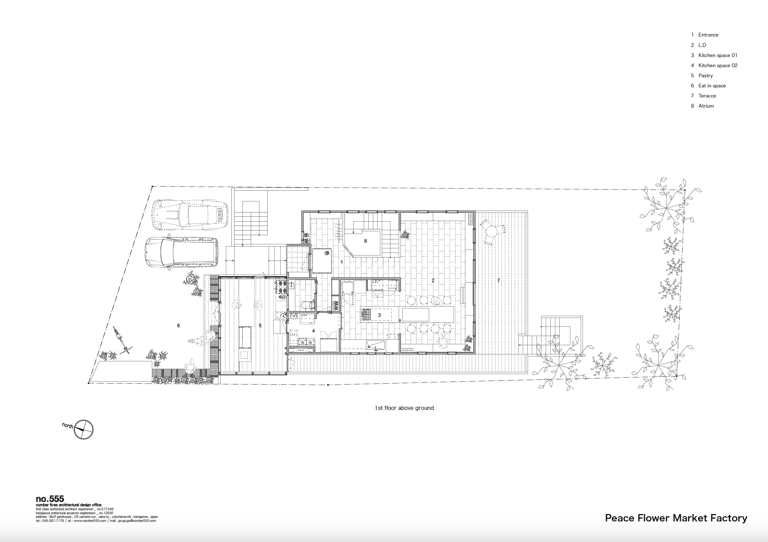
The Peace Flower Market Factory is open weekends only, and is an offshoot of Yuko’s main Peace Flower Market, a combination café and flower shop a mile away in bustling Motomachi. “I’m a hippie at heart,” says Yuko.

Adds Yuko: “The neighborhood is residential, but it’s near early settlement houses and other historic sites, and is zoned for some commercial—which is how I was able to have a café in my house.”

The café’s baked goods are made in the new kitchen in the back. Yuko offers flower arranging classes in her establishments, which are also known for their wide-ranging music: Yuko keeps her large collection of vinyl records in bins under the counter.

The antique chest of drawers is a Japanese medicine cabinet from a pharmacy. A signature No. 555 touch when space is tight: in lieu of a front coat closet, there’s a steel rod hung from the ceiling.






Here are three more No.555 projects:
- Studly: A Surprising Gut Remodel—with Interior Curves
- An Inventive Sliver of a House in Tokyo
- Rescued Relic: A Romantic Atelier for Two Sisters
Frequently asked questions
Who designed the Cafe and Living Quarters by No. 555 Architecture in Japan?
The Cafe and Living Quarters in Japan were designed by No. 555 Architecture.
What is the purpose of the building?
The building serves as a cafe and also provides living quarters for the residents or employees.
What is the architectural style of the building?
The architectural style of the Cafe and Living Quarters is modern and minimalist.
Where is the building located?
The building is located in Japan.
Are the cafe and living quarters separate or integrated spaces?
The cafe and living quarters are integrated spaces within the same building.
Is there outdoor seating available in the cafe?
Yes, the cafe provides outdoor seating options for the visitors.
What are the special features of the living quarters?
The living quarters feature a combination of functional and aesthetic design elements, with a focus on simplicity and efficiency.
Are there any unique design elements in the building?
Yes, the building incorporates unique design elements such as large windows for natural light, open floor plans, and a rooftop garden.
Can the living quarters be rented or are they exclusively for employees?
The living quarters can be rented by individuals who wish to reside in the premises or are open to employees as well.
Is the building open to the public or private?
The cafe is open to the public, while the living quarters are private spaces.
Have a Question or Comment About This Post?
Join the conversation