For several years now, we’ve been avidly following art director/set designer Sandy Suffield’s personal creative projects, from converting an abandoned electrical building into a dream vacation rental to transforming used packing materials into botanical art. Today, as she prepares to move for the first time in nearly 25 years, Sandy has invited us to tour her longtime home base, a two-bedroom flat in North London entirely furnished with vintage finds—and newly on the market.
“I’m an eBay, charity shop, vintage addict,” says Sandy. “Choosing old stuff is both an aesthetic choice and a reluctance to contribute to landfill.” It’s also economical: she’s continually adding to the collection and upgrading her spaces, but the only change she classifies as a splurge is the floor-to-ceiling glass door linking the living room and garden.
How does Sandy keep her quarters from being overwhelmed by all the “tut” that she welcomes in? Read on for the simple tricks of her trade that she applied throughout.
Photography by Sandy Suffield, unless noted.

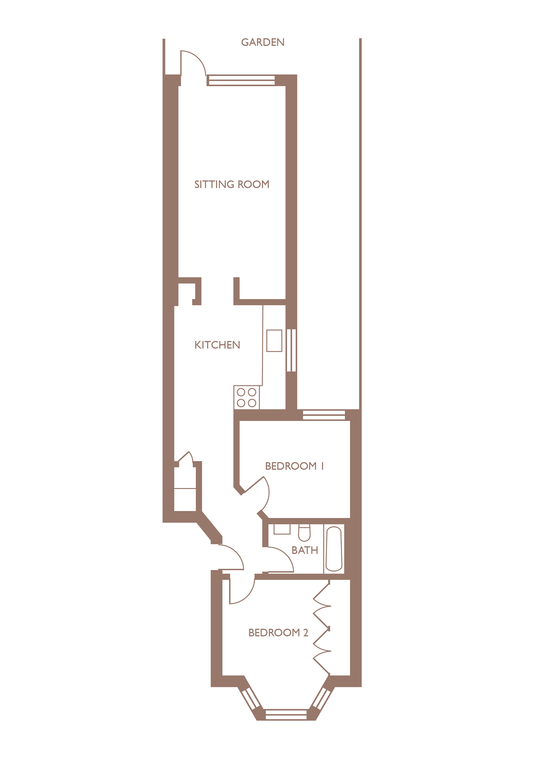
Sandy bought the ground floor flat (hers has the bay window with the curtains) in 2001 after “touring about 40 places within a tight catchment.” She was sold by the apartment’s lovely natural light and its private garden—scroll to the end to see the floor plan. Photograph by Melissa Hunt.




Early in her career, after working as a designer at Pentagram and serving as the art director of Timeout London, Sandy joined the Apple team and lived in San Francisco for four years: the Danish teak monkey, purchased at the Alameda flea market, is a souvenir from those days.

Since the spaces aren’t big, Sandy “works hard to make sure they function well and are easy to navigate: no kitchen islands or sofas in the middle of the room.”




On view here: pieces by friends—a ceramic vessel by Jo Waller and collage by Lauri Hopkins—and Indian juggling clubs.

The mono prints over the bed are made from carved bread boards by Rosa Pagoda and the French opaline lamp is an eBay purchase: “I‘ve lost count of how many lamps I have, I can’t indulge my love of chairs—the space won’t accommodate enough of them—so lights have become an obsession.”

The metal stencils in the window, likely from an old cricket scoreboard, “mean cabbies and the postie can always find the flat.”



Here are some of Sandy’s DIY art projects:
- Scrap Paper Flowers: Garden-Inspired Art
- Paper Quilts Pieced Together from Naan Bread Bags and Other Castoffs
- Shimmering Silver Oak Leaves on Branches
Good taste runs in the Suffield family: see A Shopkeeper’s 1930s Family Home in Winchester.




Have a Question or Comment About This Post?
Join the conversation