Architects Léa Cottreel and Rosalie Robert founded RREEL in 2023 as a Paris-based architectural practice specializing in the intervention of existing structures. As Léa and Rosalie both hold the DSA Architecture and Heritage from Énsa-PB in Paris, the firm is focused on the restoration of protected buildings and the conversions of rural or industrial heritage buildings. With an expertise in buildings constructed in the 19th and 20th centuries, RREEL was the right firm to call upon for the restoration of apartment designed by Le Corbusier and Pierre Jeanneret in 1931 and 1934. The Molitor building, located in the Boulogne-Billancourt region just outside the 16th arrondissement of Paris, was designed with 10 apartments on the lower floors, and two apartments on the top floors which functioned as Le Corbusier’s own residence and studio (the apartment is still managed by Fondation Le Corbusier today). The lower floor apartments were originally sold by the real estate company Paris-Parc des Princes with interior layouts which were freely chosen by the buyers, thanks to the innovative free plan developed by Le Corbusier.
When the clients, a couple from Slovakia with a passion for architecture, bought the apartment as a Parisian pied-à-terre, there were looking to restore the design and qualities of Le Corbusier’s work after the original layout had been completely removed in a 1970’s renovation. As with all projects, RREEL initiated the restoration by way of thorough historical research into the Le Corbusier archives held at the Fondation Le Corbusier. “The foundation was involved right from the start of the project,” Rosalie explains. “We showed them the flat at every stage of the project. We shared the discoveries of original materials with them as we removed the 1970s coverings. They provided us with advice and knowledge of Le Corbusier’s work and we visited the Le Corbusier studio flat several times to observe the materials and furniture details.” As with other projects, the resulting design challenges contemporary standards and gives meaning to the preservation of architecture. Of the Molitor apartment, the architects explain, “The new interior is conceived as a dialogue of several distinct objects, whose shapes, colors, and materials give a historical and poetic echo to the existing building.”
Photography by Mary Gaudin for RREEL.

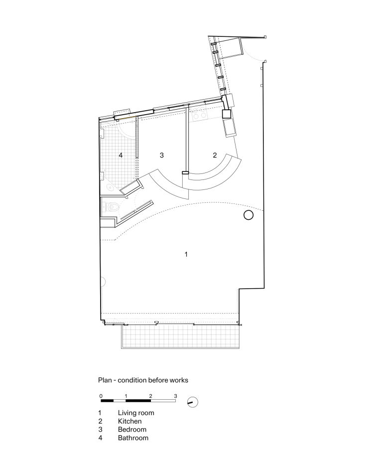
The 625-square-foot apartment is divided into three rooms: the bedroom, the common room, and the office, in addition to the kitchen and bathroom. (See the hypothesis for Le Corbusier’s original layout compared to the 1970s update and RREEL’s version at the end of this post.)




Colors are directly inspired by Le Corbusier’s two palettes created for the Salubra wallpapers he used in his buildings: one from 1931 with soft, pastel colors, and another from 1959 with bold color. “We found traces of the original wallpaper used int he flat, which was a blue-grey. We decided to use this color on the large curved wall that runs through the flat.”











Layouts



For more Le Corbusier and Le Corbusier-inspired design, see our posts:
- 12 Design Lessons from Le Corbusier’s Maison La Roche in Paris
- Design Sleuth: A Wall Sconce Inspired by Le Corbusier
- European Light Switches in Le Corbusier’s Architectural Colors
- Steal This Look: Le Corbu-Inspired Kitchen in Los Angeles for a ‘Lady Bird’ Producer
Frequently asked questions
When was RREEL founded and what is their specialization?
RREEL was founded in 2023 as a Paris-based architectural practice specializing in the intervention of existing structures.
What kind of buildings does RREEL focus on restoring?
RREEL focuses on the restoration of protected buildings and the conversions of rural or industrial heritage buildings, especially those constructed in the 19th and 20th centuries.
What was the original purpose of the apartment in Le Corbusier's Molitor Building?
The apartment in the Molitor Building served as Le Corbusier's own residence and studio, while the lower floor apartments had interior layouts chosen by the buyers.
What inspired the new interior design of the restored apartment?
The new interior design was inspired by Le Corbusier's original work, aiming to create a dialogue with historical elements of the building.
What material was used for the kitchen countertop and cabinet doors?
The kitchen countertop is made of Corian, and the cabinet doors are lacquered white.










Have a Question or Comment About This Post?
Join the conversation