The project began as a near-ruin in Aurignac, France: an uninhabited medieval house, pared back to its stone structure. When a Paris-based artist discovered the village by chance and decided to stay, he enlisted Les Ateliers Permanents—founded by Chloé Morin and Enzo Fruytier, with an office in Aurignac—to rebuild it as a working home. “We work where people live, where everyday life has taken root: in the margins, the outskirts, the countryside, small urban centers,” Morin explains. “Everywhere, the task is to listen to what the territory tells us—and to respond with precision and care.”
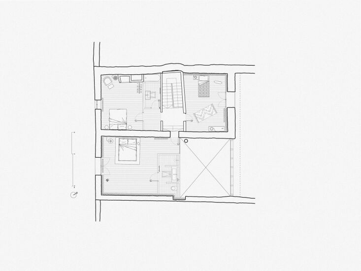
Here, the intervention was extensive by necessity. The house had sat empty for nearly 20 years and was in poor condition, so the architects worked from the edges inward. Only the walls and part of the existing structure remained, with one section formerly used as a barn. The roof was rebuilt and insulated; floors excavated and insulated; and the interior levels reworked into a stepped sequence. The main living area, once outdoors with packed earth flooring, is now organized around a double-height volume that draws light into the plan. Bathrooms were added where there had been none.
It’s a modern layer that aligns with the studio’s broader ethos: “Building no longer necessarily means constructing a new, but intervening with care in what is already there. Rehabilitating, adapting, transforming—not by default, but by choice.” Here’s a look.
Photography by Sandrine Iratcabal for Les Ateliers Permanents.



















For more modernized French interiors, see our posts:
-
- Modernity in Outer Paris: A 1910 House in Île-de-France by Mudo Architecture
- The New Provencal Style: An Artfully Reinvented French Mas
- Bioclimatique: An Arles Farmhouse-Turned-Artist Residency with Sustainability in Mind
- Past and Present: A Montpellier Architect Restores a Historic Maison de Maître
Have a Question or Comment About This Post?
Join the conversation