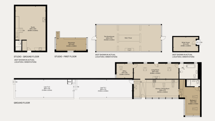
Inspired by Margot’s post last week on the stellar, nontraditional kitchens she spotted on the websites of European real estate firms, I found myself perusing the listings of my favorite U.K. agency, The Modern House, and there, I came across an especially dreamy offering: a rambling two-acre, multi-building property purchased by a pair of artists, Leila El-Kayem and Sophie Mayer, who lovingly transformed the dilapidated Victorian walled garden into a stylish retreat that’s appealingly rough around the edges.
The two creatives (Leila is a conceptual artist and poet; Sophie is a painter) enlisted architecture firm McClean Quinlan to help them transform the garden into a two-bedroom home that taps into the “feral” landscape of the area. “There’s something about walking into an untamed space that gives you permission to become untamed yourself,” Sophie told The Modern House’s Journal. “It reduced us back to an instinctive way of living, and that became very humbling and formative for both of us.”
“We wanted to retain as much as possible of what was already here,” continued Leila. “So we worked with the existing materials to make sure that we honoured what came before us, preserving the romanticism of the ruin. We haven’t knocked anything down. We just tried to keep the integrity of what’s here and slowly repair it.”
Here’s a peek at their loved, lived-in retreat. Head here for the full interview and here for the listing.
Photography by Paul Whitbread, courtesy of The Modern House.












See also:
- Rehab Diary: Architect Ben Daly and Family at Home in a Converted Sheep Shed
- Indoor-Outdoor Living in Paris: A Windowless Warehouse Converted into a Family Loft, Central Courtyard Included
- Hooked on a Ruin: A Remote Barn Conversion in Rural Iceland


Have a Question or Comment About This Post?
Join the conversation